Casa indipendente in vendita

Envie, Via Roma
€ 150.000
8 locali 8 locali
230 Mq 230 Mq
2 bagni 2 bagni

Casa indipendente in vendita

Envie, Via Roma

Descrizione annuncio

ENVIE in Via Roma, in centro al Paese, casa indipendente con giardino.

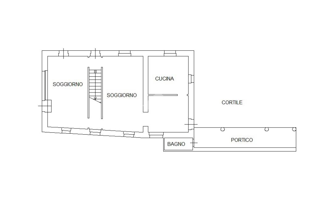
L'immobile si sviluppa su tre livelli.

Il piano terra si compone di soggiorno, cucina e un locale in precedenza adibito a negozio che può essere utilizzato come sala da pranzo.

Dalla cucina si accede al cortile e al giardino privato, che si trovano sul retro della casa.

Attraverso scala interna si accede al primo piano che si compone di tre spaziose camere da letto matrimoniali, di cui due con uscita esterna sul balcone e un bagno.

Il terzo piano, attualmente grezzo, può essere ultimato a proprio piacimento creando due camere da letto oppure una zona relax con annesso bagno.

Il tetto è stato completamente rifatto e il riscaldamento è autonomo con caldaia a metano.

Completano la proprietà il garage e la cantina.

Mostra tutto

Nelle vicinanze

Scuole Scuole
Scuole
110 m
Farmacia Farmacia
Farmacia
90 m
Ristoranti Ristoranti
Castello di Envie
90 m
Mostra tutto

Caratteristiche

Rif.:
61184267
Piano:
2 di 2 (Piano su più livelli)
Box:
1
Posti auto:
1
Balconi:
3
Camere da letto:
3
Mostra tutto
Prezzo Prezzo
€ 150.000
Rata mutuo Rata mutuo
€ 711 / mese
Spese annue Spese annue
€ 0
Proponi il tuo prezzoProponi il tuo prezzo

Classe Energetica

F
F
F
F
F
F
F
F
F
EP globale non rinnovabile:
205.61 kW h/m² anno
EP globale rinnovabile:
10.69 kW h/m² anno
EP invernale del fabbricato:
EP estiva del fabbricato:
Anno di costruzione:
1960
Riscaldamento:
Autonomo
Tipo impianto:
A radiatori
Tipo alimentazione:
Metano

Ti interessa visionare l'immobile?

Fissa un appuntamento  Fissa un appuntamento

Richiedi informazioni

Clicca su Leggi per aprire l'informativa
* Questi campi sono obbligatori

Calcola il tuo mutuo

Semplice e senza impegno
Anticipo

( % )
Mutuo

( % )

pochi semplici passi

inserisci i tuoi dati
Questionario completato
Grazie per aver richiesto un appuntamento senza impegno con un nostro Consulente del Credito e Assicurativo.

Hai inserito correttamente tutti i dati necessari e a breve riceverai una e-mail con un link da convalidare per inviare i tuoi dati.
Affiliato
Immobiliare Valle Po Sas
Via Staffarda, 2 12036 Revello (CN)

Il nostro staff


  • Luca Fissore
    Affiliato

  • Matteo Giordanino
    Responsabile

  • Lavinia Alberto
    Coordinatrice

  • Giorgia Capellino
    Affiliata
Via Staffarda, 2 12036 Revello (CN)
Zona: Revello Envie Valle Po
Mostra su mappa
Orari: Dal Lunedì al Sabato dalle 9.00-12.30/14.30-19.30
Affiliato
Immobiliare Valle Po Sas
Via Staffarda, 2 12036 Revello (CN)

2026 Tecnocasa Franchising S.p.A. - P. IVA 08365160152 - Via Monte Bianco 60/A 20089 Rozzano (MI). Ogni agenzia ha un proprio titolare ed è autonoma. Privacy policy | Policy utilizzo | Cookie policy