Casa indipendente in vendita

Envie, Via Comba Garitta - Chiappero
€ 110.000
10 locali 10 locali
280 Mq 280 Mq
2 bagni 2 bagni

Casa indipendente in vendita

Envie, Via Comba Garitta - Chiappero

Descrizione annuncio

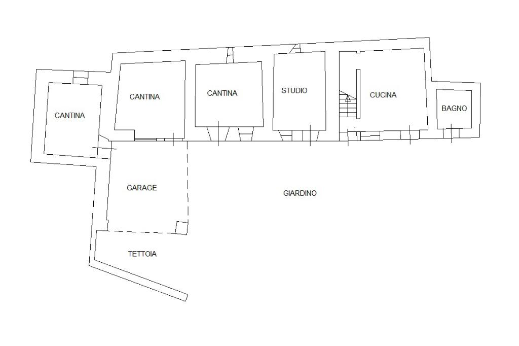
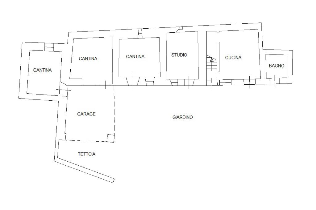
ENVIE in Via Comba Garitta, zona tranquilla e ben esposta al sole, casa indipendente con giardino di pertinenza.

L'immobile si sviluppa su due livelli.

Al piano terra sono presenti una cucina, un bagno, uno studio e tre locali utilizzati come cantina.

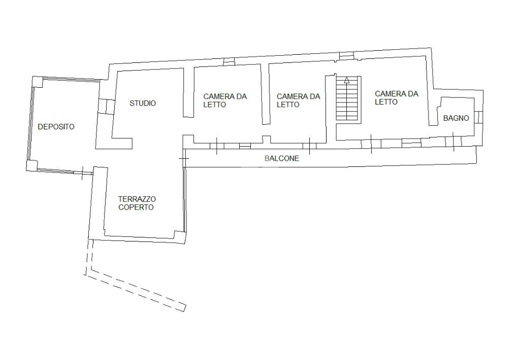
Attraverso scala interna si accede al primo piano che si compone di tre ampie camere da letto matrimoniali, tutte con uscita sul balcone, un bagno e uno studio collegato al terrazzo coperto.

Internamente l'immobile si presenta da ristrutturare ma di recente è stato rifatto completamente il tetto.

A completare l'abitazione è presente il garage, la tettoia e un locale di deposito retrostante il fabbricato.

Mostra tutto

Nelle vicinanze

Scuole Scuole
Scuole
1,4 Km
Farmacia Farmacia
Farmacia
1,5 Km
Ristoranti Ristoranti
Castello di Envie
1,4 Km
Locanda della trappa
1,7 Km
Mostra tutto

Caratteristiche

Rif.:
61184873
Piano:
2 di 2
Box:
1
Posti auto:
2
Balconi:
1
Terrazzi:
1
Mostra tutto
Prezzo Prezzo
€ 110.000
Rata mutuo Rata mutuo
€ 521 / mese
Spese annue Spese annue
€ 0
Proponi il tuo prezzoProponi il tuo prezzo
Immobile valutato con T·Valuta

Classe Energetica

F
F
F
F
F
F
F
F
F
EP globale non rinnovabile:
285.04 kW h/m² anno
EP globale rinnovabile:
979.30 kW h/m² anno
EP invernale del fabbricato:
EP estiva del fabbricato:
Anno di costruzione:
1970
Riscaldamento:
Autonomo
Tipo impianto:
A stufa
Tipo alimentazione:
Altro

Ti interessa visionare l'immobile?

Fissa un appuntamento  Fissa un appuntamento

Richiedi informazioni

Clicca su Leggi per aprire l'informativa
* Questi campi sono obbligatori

Calcola il tuo mutuo

Semplice e senza impegno
Anticipo

( % )
Mutuo

( % )

pochi semplici passi

inserisci i tuoi dati
Questionario completato
Grazie per aver richiesto un appuntamento senza impegno con un nostro Consulente del Credito e Assicurativo.

Hai inserito correttamente tutti i dati necessari e a breve riceverai una e-mail con un link da convalidare per inviare i tuoi dati.
Affiliato
Immobiliare Valle Po Sas
Via Staffarda, 2 12036 Revello (CN)

Il nostro staff


  • Luca Fissore
    Affiliato

  • Matteo Giordanino
    Responsabile

  • Lavinia Alberto
    Coordinatrice

  • Giorgia Capellino
    Affiliata
Via Staffarda, 2 12036 Revello (CN)
Zona: Revello Envie Valle Po
Mostra su mappa
Orari: Dal Lunedì al Sabato dalle 9.00-12.30/14.30-19.30
Affiliato
Immobiliare Valle Po Sas
Via Staffarda, 2 12036 Revello (CN)

2026 Tecnocasa Franchising S.p.A. - P. IVA 08365160152 - Via Monte Bianco 60/A 20089 Rozzano (MI). Ogni agenzia ha un proprio titolare ed è autonoma. Privacy policy | Policy utilizzo | Cookie policy