Casa semindipendente in vendita

Revello, Via dei Grilli - San Grato
€ 300.000
5 locali 5 locali
300 Mq 300 Mq
3 bagni 3 bagni

Casa semindipendente in vendita

Revello, Via dei Grilli - San Grato

Descrizione annuncio

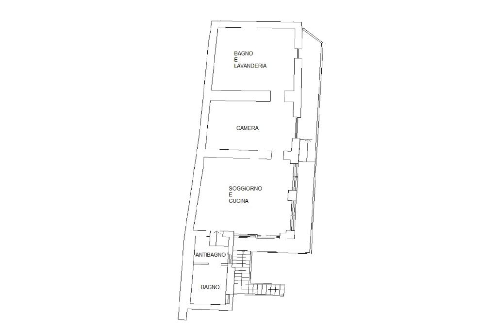
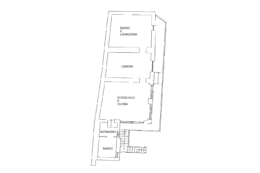
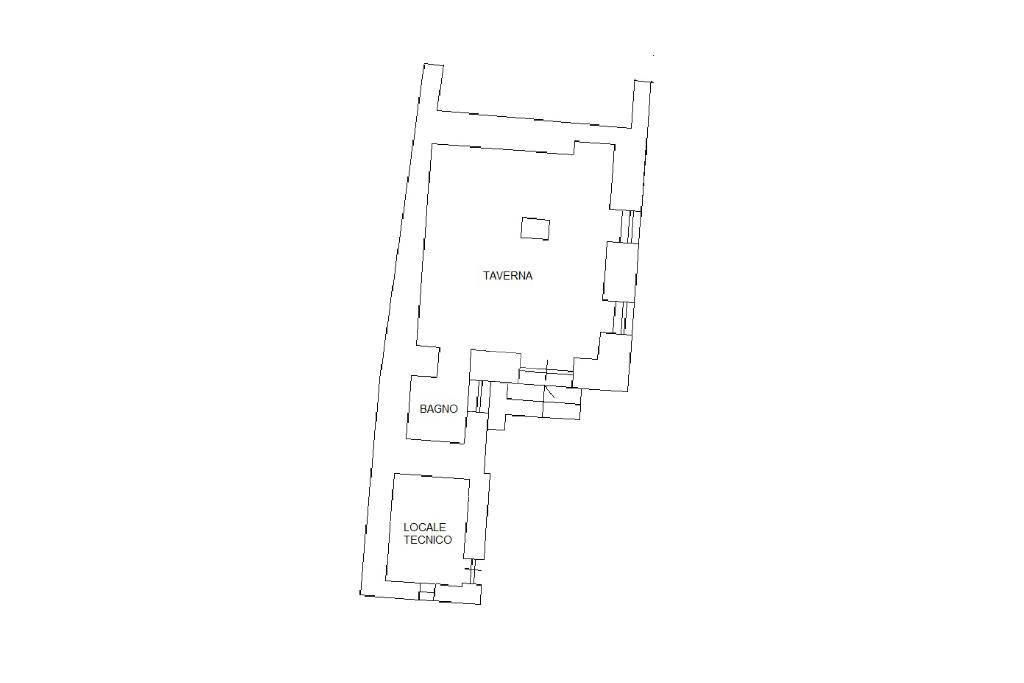
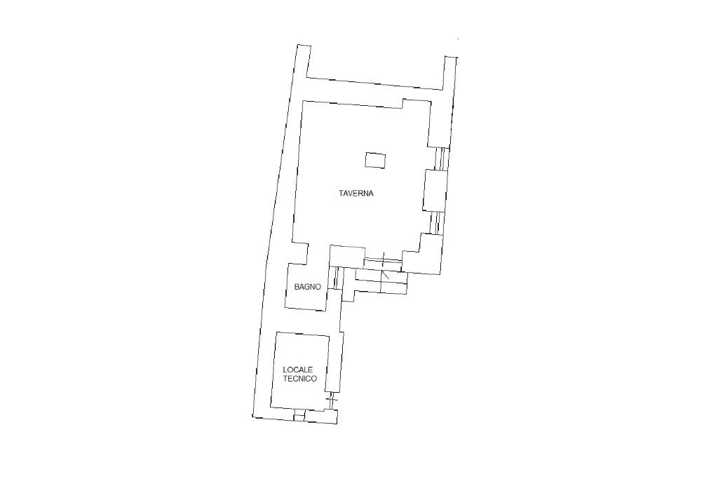
REVELLO in Via dei Grilli, casa libera su tre lati completamente ristrutturata.

L'immobile si sviluppa su due livelli.

Al piano terra è presente un ampio salone attualmente utilizzato come tavernetta con annesso bagno.

Il primo piano si compone di soggiorno con cucina a vista, un'ampia camera da letto matrimoniale e due bagni, di cui uno con lavanderia.

Il soggiorno presenta vetrate e soffitto con travi a vista.

Completano la proprietà circa 400 metri di terreno.

Mostra tutto

Nelle vicinanze

Scuole Scuole
Complesso scolastico
1,7 Km
Scuole
1,8 Km
Farmacia Farmacia
Farmacia
1,5 Km
Bar Bar
Bar della Stazione
1,6 Km
Ristoranti Ristoranti
Ristorante Le Mani in Pasta
1,6 Km
Ristorante Bramafam
1,7 Km
Castello di Envie
1,7 Km
Ristoranti
1,8 Km
Mostra tutto

Caratteristiche

Rif.:
61129419
Piano:
2 di 2 (Piano su più livelli)
Posti auto:
2
Balconi:
2
Camere da letto:
2
Arredamento:
Assente
Mostra tutto
Prezzo Prezzo
€ 300.000
Rata mutuo Rata mutuo
€ 1.422 / mese
Spese annue Spese annue
€ 0
Proponi il tuo prezzoProponi il tuo prezzo
Immobile valutato con T·Valuta

Classe Energetica

C
C
C
C
C
C
C
C
C
EP globale non rinnovabile:
126.36 kW h/m² anno
EP globale rinnovabile:
434.98 kW h/m² anno
EP invernale del fabbricato:
EP estiva del fabbricato:
Anno di costruzione:
1650
Riscaldamento:
Autonomo
Tipo impianto:
A stufa
Tipo alimentazione:
Altro

Ti interessa visionare l'immobile?

Fissa un appuntamento  Fissa un appuntamento

Richiedi informazioni

Clicca su Leggi per aprire l'informativa
* Questi campi sono obbligatori

Calcola il tuo mutuo

Semplice e senza impegno
Anticipo

( % )
Mutuo

( % )

pochi semplici passi

inserisci i tuoi dati
Questionario completato
Grazie per aver richiesto un appuntamento senza impegno con un nostro Consulente del Credito e Assicurativo.

Hai inserito correttamente tutti i dati necessari e a breve riceverai una e-mail con un link da convalidare per inviare i tuoi dati.
Affiliato
Immobiliare Valle Po Sas
Via Staffarda, 2 12036 Revello (CN)

Il nostro staff


  • Luca Fissore
    Affiliato

  • Matteo Giordanino
    Responsabile

  • Lavinia Alberto
    Coordinatrice

  • Giorgia Capellino
    Affiliata
Via Staffarda, 2 12036 Revello (CN)
Zona: Revello Envie Valle Po
Mostra su mappa
Orari: Dal Lunedì al Sabato dalle 9.00-12.30/14.30-19.30
Affiliato
Immobiliare Valle Po Sas
Via Staffarda, 2 12036 Revello (CN)

2026 Tecnocasa Franchising S.p.A. - P. IVA 08365160152 - Via Monte Bianco 60/A 20089 Rozzano (MI). Ogni agenzia ha un proprio titolare ed è autonoma. Privacy policy | Policy utilizzo | Cookie policy