Casa indipendente in vendita

Revello, Via Vecchia della valle - La Virginia
€ 92.000
6 locali 6 locali
150 Mq 150 Mq
2 bagni 2 bagni

Casa indipendente in vendita

Revello, Via Vecchia della valle - La Virginia

Descrizione annuncio

REVELLO in Via Vecchia della Valle, località Morra San Martino, casa indipendente con terreno privato.

L'immobile ha subtio di recente una parziale ristrutturazione e si presenta da ultimare.

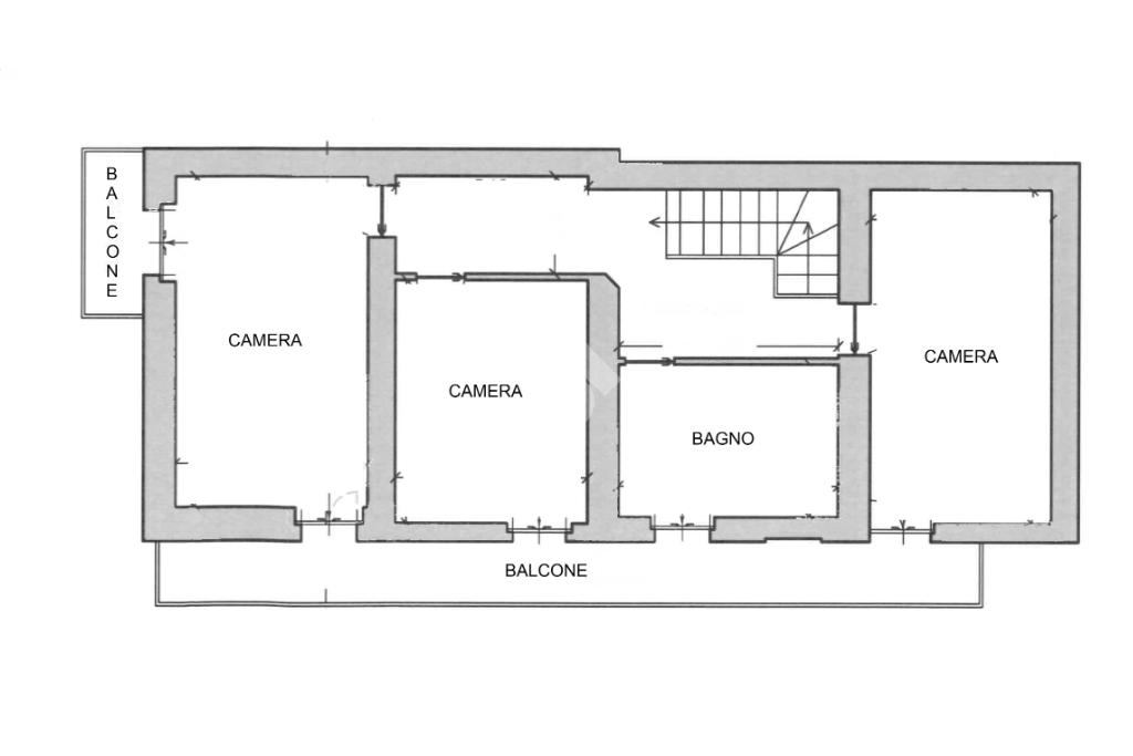
L'abitazione si dispone su due livelli.

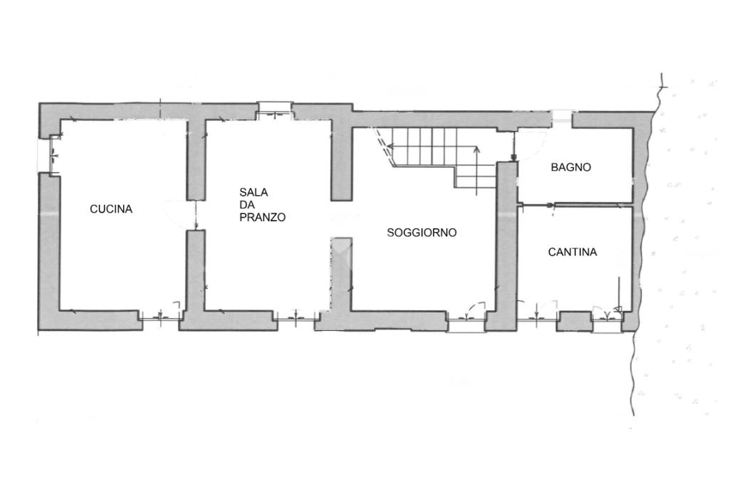
Al piano terra è stato predisposto ingresso su soggiorno, sala da pranzo, cucina e un bagno.

Tramite scala interna si accede al primo piano dove sono presenti tre camere da letto, tutte con uscita esterna sul balcone e il secondo bagno.

Completano la proprietà la cantina e la tettoia antistante il fabbricato.

Il terreno che circonda l'abitazione è principalmente boschivo e misura circa 20.000 metri.

Mostra tutto

Nelle vicinanze

Scuole Scuole
Scuole
1,9 Km
Complesso scolastico
2,0 Km
Farmacia Farmacia
Farmacia
1,7 Km
Bar Bar
Bar della Stazione
2,5 Km
Ristoranti Ristoranti
Ristoranti
1,9 Km
Ristorante Bramafam
2,5 Km
Ristorante Le Mani in Pasta
2,6 Km
Mostra tutto

Caratteristiche

Rif.:
61170117
Piano:
2 di 2 (Piano su più livelli)
Posti auto:
2
Balconi:
2
Camere da letto:
3
Arredamento:
Assente
Mostra tutto
Prezzo Prezzo
€ 92.000
Rata mutuo Rata mutuo
€ 436 / mese
Spese annue Spese annue
€ 0
Proponi il tuo prezzoProponi il tuo prezzo
Immobile valutato con T·Valuta

Classe Energetica

F
F
F
F
F
F
F
F
F
EP globale non rinnovabile:
239.26 kW h/m² anno
EP globale rinnovabile:
774.84 kW h/m² anno
EP invernale del fabbricato:
EP estiva del fabbricato:
Anno di costruzione:
1960
Riscaldamento:
Autonomo
Tipo impianto:
A radiatori
Tipo alimentazione:
Altro

Ti interessa visionare l'immobile?

Fissa un appuntamento  Fissa un appuntamento

Richiedi informazioni

Clicca su Leggi per aprire l'informativa
* Questi campi sono obbligatori

Calcola il tuo mutuo

Semplice e senza impegno
Anticipo

( % )
Mutuo

( % )

pochi semplici passi

inserisci i tuoi dati
Questionario completato
Grazie per aver richiesto un appuntamento senza impegno con un nostro Consulente del Credito e Assicurativo.

Hai inserito correttamente tutti i dati necessari e a breve riceverai una e-mail con un link da convalidare per inviare i tuoi dati.
Affiliato
Immobiliare Valle Po Sas
Via Staffarda, 2 12036 Revello (CN)

Il nostro staff


  • Luca Fissore
    Affiliato

  • Matteo Giordanino
    Responsabile

  • Lavinia Alberto
    Coordinatrice

  • Giorgia Capellino
    Affiliata
Via Staffarda, 2 12036 Revello (CN)
Zona: Revello Envie Valle Po
Mostra su mappa
Orari: Dal Lunedì al Sabato dalle 9.00-12.30/14.30-19.30
Affiliato
Immobiliare Valle Po Sas
Via Staffarda, 2 12036 Revello (CN)

2026 Tecnocasa Franchising S.p.A. - P. IVA 08365160152 - Via Monte Bianco 60/A 20089 Rozzano (MI). Ogni agenzia ha un proprio titolare ed è autonoma. Privacy policy | Policy utilizzo | Cookie policy